產品名稱:深圳ST550TPD-防塵儀表
主要應用在工業過程稱重、灌裝、包裝、配料、檢重、分選、測力等工業領域。
技術參數
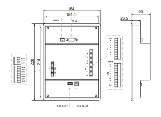
外形尺寸
特點及應用
相關案例
相關下載
精度 | 顯示分度:顯示分度150,000 |
顯示和按鍵 | 顯示:7英寸觸摸屏顯示 稱重狀態顯示:皮重、凈重、運動檢測、零點、單位 按鍵:4個功能鍵 |
AD轉換 | 類型:Σ/Δ24位AD轉換,帶模擬和數字濾波 AD采樣速率:400HZ 零點漂移:<0.02μV/℃ 輸入范圍:-10~30mV 精度:顯示精度150,000 |
秤的標定和功能 | 標定:免砝碼和砝碼標定 濾波:多級數字濾波 秤的功能:去皮、清皮、零點自動跟蹤、運動檢測 輸入點/輸出點:8輸入/8輸出 |
線性和穩定性 | 非線性:高于0.002%FS 溫度系數:≤5ppm℃ |
傳感器 | 激勵電壓:5VDC 連接傳感器數目:6個350Ω傳感器 連接方式:四線制或者六線制 |
通訊 | 通信接口:RS232、RS485 |
安裝 | 安裝方式:面板式 |
溫度和外殼 | 工作溫度:-10℃-40℃,至大溫度95%,無冷凝 外殼材質:304不銹鋼/ABS 功率:24VDC電源輸入,整機至大功耗3W |
特點
7英寸觸摸屏顯示
多級動態數字濾波,滿足高速動態稱重需求
支持免砝碼標定功能、砝碼標定功能
抗電磁干擾、抗外界震動
支持多種選件
顯示分度150,000
1路RS232與1路RS485雙串口通訊口,支持MODBUS-RTU
順序控制預置點
高速測力功
高速動態檢重功能
上千種配方存儲,數十萬條歷史數據保存,U盤導入/導出EXCEL
應用
儀表使用注意事項
儀表的使用溫度范圍為:-10~45℃,請避免將儀表安裝在陽光直射的場所,安裝在溫度較低的場所請注保溫,且不要將儀表斷電,因儀表內部可能會形成冷凝。
儀表對防水防塵等級是有要求的,當安裝于配電箱時,使儀表滿足相應的防水防塵等級,對于一些帶電的粉塵(例如碳粉)、易結塊的粉塵(例如水泥、粉煤灰等)、潮濕(例如海邊)、有腐蝕性氣體(例如HF氣體)時要尤其注意。
防雷擊:電子衡器屬于弱電系統,容易受到雷電的襲擊而損壞部件。雷擊主要從兩個方面進入儀表,由電源線導入和由秤臺經信號電纜導入。在正常天氣下,操作人員只要關閉電源開關即可,但在打雷較為嚴重的地區或打雷距離比較近時,要暫停使用,且須拔下儀表電源插頭及秤臺信號電纜插頭(在空曠的室外要特別注意)。
確保儀表單獨接地,接地有雙重作用,它既保護操作人員人身安危,同時也具有抗干擾作用,如果儀表接地不當可能會引起漏電或重量數字跳動。還應定期去檢查接地點是否良好,因為經過較長時間后,各接地點會產生氧化、銹蝕等情況。
電源供電為AC85~265V時,請按如下方式接地:

電源供電為DC18~36V時,請按如下方式接電源線:

采用AC220V供電的儀表,在進儀表之前,要加裝電源濾波器,如果前端有大功率的變頻器,進儀表前,要加裝電源凈化器,否則,儀表可能無法正常工作。采用DC18~36V供電的儀表,前端開關電源的容量要足夠,否則可能會出現儀表無法啟動或有時無法啟動的現象。
儀表不應和能產生強烈干擾的設備(如可控制硅、接觸器、變頻器等)及有可觀熱量產生的設備放在同一箱體中,若不能保證這一點,則應考慮在它們之間設置障板隔離,并在箱體內安置風扇 ●不要將儀表的激勵電源給其它設備供電,否則可能導致儀表顯示值跳動或稱量值不準甚至燒壞儀表。
使用儀表開關量輸入時,本公司儀表要求的輸入類型為無電壓觸點輸入或NPN型三極管輸入,如果輸入是PLC給出的,PLC類型為繼電器型或共地型。輸入接口與外部設備的連接電纜距離不要超過5米,建議不要靠近交流電源與動力線,以免引起誤運作。
使用儀表開關量輸出時,本公司儀表輸出觸點為NPN型三極管輸出,驅動能力可達300mA,外接電壓為DC12~48V,如果輸出是驅動中間繼電器的,就要注意儀表的驅動能力(超過儀表的驅動能力可能會燒壞儀表輸出或減少輸出點的壽命)和并聯反向二極管的方向(1N4007,接反會燒壞儀表)。如果輸出是驅動PLC觸點時,PLC輸入觸點類型要求為共源型。

●儀表使用RS232通訊時,應注意:
※ 通訊電纜要使用屏蔽線(將屏蔽層接地),長度不得超過15米。
※ 通訊電纜端子要接牢,不可有任何松動,否則,可能會燒壞儀表或上位機的通訊板。
※ 不可帶電拔插通訊端子,否則,可能會燒壞儀表或上位機的通訊板。
●儀表使用RS485通訊時,應注意:
※ 一般RS485協議的接頭沒有固定的標準,可能根據廠家的不同引腳順序和管腳功能可能不盡相同,用戶可以查閱相關產品RS485的引腳圖。
※ 每臺儀表要手牽手地串下去,不可以有星型連接或者分叉,如果有星型連接或者分叉,干擾將非常大,會造成通訊不暢,甚至通訊不上。

※ 通訊電纜應選用屏蔽雙絞線(將屏蔽層接地),其次為雙絞線,不要使用普通的電纜,如果使用普通電纜,干擾將非常大,會造成通訊不暢,甚至通訊不上。通訊電纜的長度不得超過500米。
※ 請接入終端電阻,以增強系統的抗干擾性,終端電阻的阻值是330歐,功率1/2W。
※ 通訊電纜端子要接牢,不可有任何松動,否則,可能會燒壞儀表或上位機的通訊板。
※ 不可帶電拔插通訊端子,否則,可能會燒壞儀表或上位機的通訊板。
